Retreat
Retreat
憩いの場として
プライベートガーデンを楽しめる
憩いの場としてプライベートガーデンを楽しめるプランです。
周辺環境を気にすることなく屋外を一体化できるスタイルの家です。趣味に没頭したり、家族や友人と自由な時間を過ごしたり、外から見えない中庭はまるで第二のリビング。自然の中で四季の移ろいを感じることができ、日々の生活がより豊かで充実したものに。
外からは中庭が見えないフラットな箱型のファサード。正面の横ラインのサッシとシャープでスッキリとした玄関庇が外観のアクセントです。
プラン

1階プラン
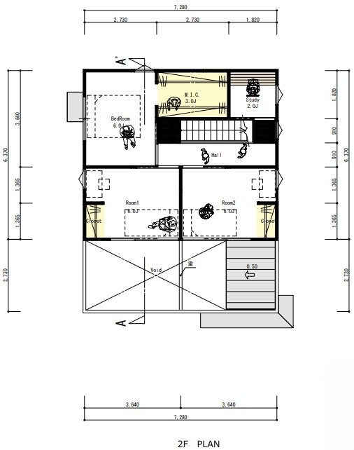
2階プラン
内観・外観







